Property Detail

3675 Mississippi

San Diego CA 92104

$1,749,000

Status: Active

Property Details

Description

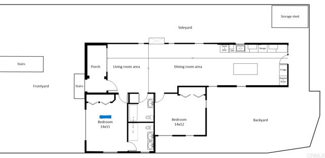
This 3-Unit residential property is certain to delight. 2bed 2bath front residence and 2 of studio units in the rear with an additonal bonus room. Perched above the street with exceptional draught tolerant xeriscape front landscape and abundant curb-appeal this Spanish style hacienda consists of 3 residential dwellings. Records show an original date built of approximately 1920, current records show an effective year built of 2020 due to the substantial improvements completed. Front-facing house (3675) improvements include full interior renovation creating an open living space where the use of light, honey oak wood-effect tile floors, quartzite, stone, complement the clean original exterior with the updated modern, contemporary interior style. Great room floor plan offers a spacious flow from the living/dining area to the impressive, well-appointed kitchen which includes stainless steel appliances and a center waterfall island with bar-height counter seating that steals the show. Direct access to the exterior patio from the kitchen makes alfresco dining a pleasure. Two bedrooms include a primary bedroom with ensuite bath offering full glass enclosure shower and a spacious 2nd bedroom with adjacent bath including a whirlpool tub for ultimate relaxation. A 4-zone mini-split system covers all spaces. This residence offers both gorgeous finishes, natural light and wood-effect tile floors and the list of improvements also include foundation repairs, reconfigured floor plans, upgraded electrical, plumbing, HVAC, water heater, drainage system and more. The rear building accessed from the driveway houses 2 studio units, 3675.5 and 3679.5. Each tastefully updated and includes recently installed appliances, mini-split system, hot water heaters. The rear lot with ample spaces and surrounded by trees creates a peaceful haven. It offers two substantial new resin storage sheds, a laundry closet, 3 separate flagstone patio areas and a bonus detached structure (thought to have been an original garage) currently assigned to unit 3679.5 and used as storage/den. Located 2-1/2 blocks away from North Park’s Morely Field sport complex this neighborhood offers an abundant array of recreation, local area eateries, entertainment and conveniences. The famous San Diego Zoo and Balboa Park are slightly over 1-mile away. Ease of access to freeways, San Diego beaches and San Diego International Airport make North Park one of San Diego’s treasured residential neighborhoods

Map Location

Listing provided courtesy of Penny Nathan of Ascent Real Estate. Last updated 2026-03-14 08:11:23.000000. Listing information © 2025 CRMLS.

Ever Eternity
Contact Me
admin Real estate 9:00 AM - 5:00 PM 9:00 AM - 5:00 PM 9:00 AM - 5:00 PM 9:00 AM - 5:00 PM 9:00 AM - 6:00 PM 9:00 AM - 5:00 PM 9:00 AM - 5:00 PM https://static.royacdn.com/Site-90036f5f-a158-4157-839e-06d47f558f76/inside_pages/ever_eternity.JPG realtor # # # https://static.royacdn.com/Site-90036f5f-a158-4157-839e-06d47f558f76/inside_pages/ever_eternity.JPG

Welcome

Meet Ever

Ever Eternity is Your Local Real
Estate Professional

Whether it's your first townhouse, vacation property or coastal dream home, I will work to find the property that's best for you. I am able to anticipate and fulfill each of my clients needs, in order to find the perfect home for them and their family. I am here to work with you, to find the best fit for you, and am excited for the opportunity.

People choose to work with me for my full service expertise, experience and ethics. My base of loyal customers is the reason I am successful in this competitive sales market.

​My attention to detail allows me to find dream homes for buyers, and build thorough home marketing plans for my sellers. I have great pride in my negotiation skills and believe in transparency and full disclosure throughout each deal. I value open communication with my clients and welcome questions from start to close.

https://s3.amazonaws.com/static.organiclead.com/Site-90036f5f-a158-4157-839e-06d47f558f76/homepage/welcome_img.png /*|--------------------------------------------------------------------------| REVIEWS|--------------------------------------------------------------------------*/

"My Mom passed away 1/31/21 needless to say it was a very difficult time for me. I needed help selling my mothers home. I reached out to Ever and he stepped up big! From the beginning he was a true professional great communication skills, great attitude, always made time for me and answered any questions I had. He showed compassion for my situation and went above and beyond to make things as easy as possible for me. Go with Ever you won’t regret it!"

"I worked with Ever through the process of an Estate Sale and sale of a condominium. Throughout the experience he and his team were extremely helpful. I had never been involved with an estate sale previously and was working with the additional factor of not being local. After an initial meeting I was able to deal with he and his team remotely which simplified the entire process and experience. Any questions or issues I had were very quickly addressed and resolved. My entire experience was very positive. Thank You!"

"Ever was simply excellent. He is thorough, approachable and very knowledgable of the house buying process. We appreciated his manner and help throughout our purchase process - he never made us feel pressured to select a house and helped us find a perfect match. He was especially helpful when we needed to juggle urgent travel during the Escrow process, helping us set up power of attorney. We would recommend Ever to any type of buyer and will certainly use him for any future real estate needs that we have."

"I worked with Ever through the process of an Estate Sale and sale of a condominium. Throughout the experience he and his team were extremely helpful. I had never been involved with an estate sale previously and was working with the additional factor of not being local. After an initial meeting I was able to deal with he and his team remotely which simplified the entire process and experience. Any questions or issues I had were very quickly addressed and resolved. My entire experience was very positive. Thank You!"

"My Mom passed away 1/31/21 needless to say it was a very difficult time for me. I needed help selling my mothers home. I reached out to Ever and he stepped up big! From the beginning he was a true professional great communication skills, great attitude, always made time for me and answered any questions I had. He showed compassion for my situation and went above and beyond to make things as easy as possible for me. Go with Ever you won’t regret it!"

"Ever has been my agent through two purchases and one sale. He has a keen sence of the market and knows how best to price and time sales and purchases. He makes sure to get the job done and places the most importance on making his satisfying his clients wishes to the best of his ability. He works well with escrow, property managers, and whomever he needs to speak with."

"Working with Ever was a joy. We had a number of unexpected challenges during the process of selling our house and Ever was consistently there to help, guide, and support us. He was always available for consultation and never lost sight of the immediate issues nor the long term goals. Ever was an exemplary professional in every way and I would highly recommend him."

"Working with Ever was a great experience. Selling our Mom's house was emotionally difficult for us. Ever guided us thru the process and made it smooth and easy as possible for us. He responded to all of our questions with professionalism and knowledge. He kept us informed of every action during the sale. We trusted his advice and insights and he delivered on everything he said. The sale was quick and smooth and we couldn't be happier. We highly recommend Ever. He definitely knows his business."

/*|--------------------------------------------------------------------------| FEATURED STAFF|--------------------------------------------------------------------------*/