Property Detail

417 Norwood

San Gabriel CA 91776

$2,488,800

Status: Active

Property Details

Description

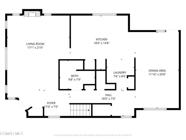
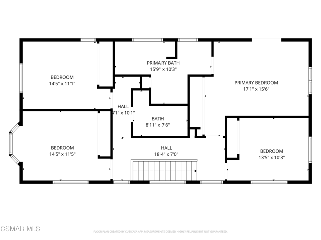
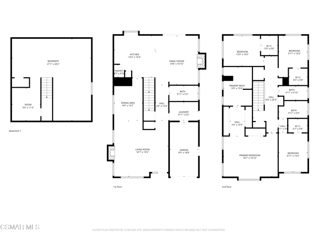
Rare and unique opportunity to own two separate homes on one lot in San Gabriel--ideal for a multi-generational estate or investment potential. This exceptional property offers a combined 8 bedrooms, 7 bathrooms, and approximately 5,200 total square feet, plus an unfinished basement in the rear unit and extensive parking. The front residence (419), built in 2006, features approximately 2,476 sq ft with 4 bedrooms, 3 bathrooms, and a 4-car attached garage. The rear residence (417) offers approximately 2,729 sq ft with 4 bedrooms, 4 bathrooms, a 1-car attached garage, and an unfinished 900 sq ft basement providing additional storage or future potential. Together, the property includes 5 total garage spaces plus 2 additional uncovered parking spaces. Both homes have been tastefully updated and are truly turnkey, featuring all new interior and exterior paint, new flooring, stainless steel appliances, and select new bathroom vanities and select new Quartz kitchen countertops. The back unit also includes all new windows. Leased solar panels help reduce energy costs for both houses and will be transferred to the buyer. Both homes have fire suppression systems installed. The outdoor space includes additional yard areas with 15 varieties of mature fruit trees. Located within the Alhambra School District, this property combines flexibility, space, and location in one exceptional offering. Marshall Park is located less than a block east of the property featuring a playground, walking/jogging path, lighted basketball courts, multi-purpose field, picnic shelters and more! Whether you're looking for a multi-generational compound, live-in investment, or a rare dual-home setup, this property delivers space, privacy, and modern updates--all in a highly desirable San Gabriel location. A truly one-of-a-kind opportunity--don't miss it.

Map Location

Listing provided courtesy of Eric Mott of Berkshire Hathaway Homeservices California Properties. Last updated 2026-05-11 08:05:08.000000. Listing information © 2025 CRMLS.

Ever Eternity
Contact Me
admin Real estate 9:00 AM - 5:00 PM 9:00 AM - 5:00 PM 9:00 AM - 5:00 PM 9:00 AM - 5:00 PM 9:00 AM - 6:00 PM 9:00 AM - 5:00 PM 9:00 AM - 5:00 PM https://static.royacdn.com/Site-90036f5f-a158-4157-839e-06d47f558f76/inside_pages/ever_eternity.JPG realtor # # # https://static.royacdn.com/Site-90036f5f-a158-4157-839e-06d47f558f76/inside_pages/ever_eternity.JPG

Welcome

Meet Ever

Ever Eternity is Your Local Real
Estate Professional

Whether it's your first townhouse, vacation property or coastal dream home, I will work to find the property that's best for you. I am able to anticipate and fulfill each of my clients needs, in order to find the perfect home for them and their family. I am here to work with you, to find the best fit for you, and am excited for the opportunity.

People choose to work with me for my full service expertise, experience and ethics. My base of loyal customers is the reason I am successful in this competitive sales market.

​My attention to detail allows me to find dream homes for buyers, and build thorough home marketing plans for my sellers. I have great pride in my negotiation skills and believe in transparency and full disclosure throughout each deal. I value open communication with my clients and welcome questions from start to close.

https://s3.amazonaws.com/static.organiclead.com/Site-90036f5f-a158-4157-839e-06d47f558f76/homepage/welcome_img.png /*|--------------------------------------------------------------------------| REVIEWS|--------------------------------------------------------------------------*/

"My Mom passed away 1/31/21 needless to say it was a very difficult time for me. I needed help selling my mothers home. I reached out to Ever and he stepped up big! From the beginning he was a true professional great communication skills, great attitude, always made time for me and answered any questions I had. He showed compassion for my situation and went above and beyond to make things as easy as possible for me. Go with Ever you won’t regret it!"

"I worked with Ever through the process of an Estate Sale and sale of a condominium. Throughout the experience he and his team were extremely helpful. I had never been involved with an estate sale previously and was working with the additional factor of not being local. After an initial meeting I was able to deal with he and his team remotely which simplified the entire process and experience. Any questions or issues I had were very quickly addressed and resolved. My entire experience was very positive. Thank You!"

"Ever was simply excellent. He is thorough, approachable and very knowledgable of the house buying process. We appreciated his manner and help throughout our purchase process - he never made us feel pressured to select a house and helped us find a perfect match. He was especially helpful when we needed to juggle urgent travel during the Escrow process, helping us set up power of attorney. We would recommend Ever to any type of buyer and will certainly use him for any future real estate needs that we have."

"I worked with Ever through the process of an Estate Sale and sale of a condominium. Throughout the experience he and his team were extremely helpful. I had never been involved with an estate sale previously and was working with the additional factor of not being local. After an initial meeting I was able to deal with he and his team remotely which simplified the entire process and experience. Any questions or issues I had were very quickly addressed and resolved. My entire experience was very positive. Thank You!"

"My Mom passed away 1/31/21 needless to say it was a very difficult time for me. I needed help selling my mothers home. I reached out to Ever and he stepped up big! From the beginning he was a true professional great communication skills, great attitude, always made time for me and answered any questions I had. He showed compassion for my situation and went above and beyond to make things as easy as possible for me. Go with Ever you won’t regret it!"

"Ever has been my agent through two purchases and one sale. He has a keen sence of the market and knows how best to price and time sales and purchases. He makes sure to get the job done and places the most importance on making his satisfying his clients wishes to the best of his ability. He works well with escrow, property managers, and whomever he needs to speak with."

"Working with Ever was a joy. We had a number of unexpected challenges during the process of selling our house and Ever was consistently there to help, guide, and support us. He was always available for consultation and never lost sight of the immediate issues nor the long term goals. Ever was an exemplary professional in every way and I would highly recommend him."

"Working with Ever was a great experience. Selling our Mom's house was emotionally difficult for us. Ever guided us thru the process and made it smooth and easy as possible for us. He responded to all of our questions with professionalism and knowledge. He kept us informed of every action during the sale. We trusted his advice and insights and he delivered on everything he said. The sale was quick and smooth and we couldn't be happier. We highly recommend Ever. He definitely knows his business."

/*|--------------------------------------------------------------------------| FEATURED STAFF|--------------------------------------------------------------------------*/